- Département : 16
- Marque : IRM
- Référence : Loggia
- Année : 2012
- Longueur : 8 m
- Largeur : 4 m
- Vitrage : simple
- Surface : 32
- Salon : centrale
- Nombre de chambres : 2
- Budget : 10380 € TTC
IRM Loggia 4 saisons
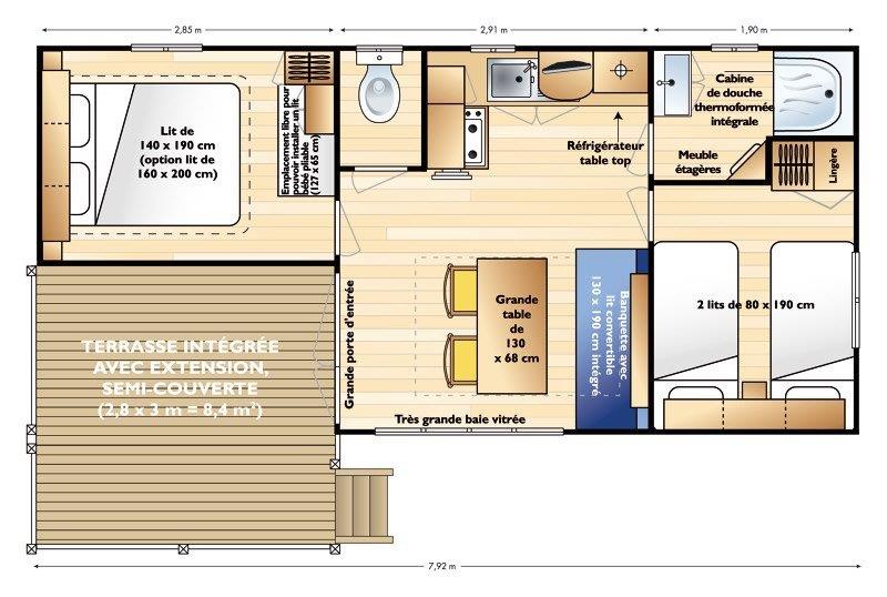
Ce mobil-home 4 saisons offre un confort optimal tout au long de l’année. Il dispose d’une terrasse extérieure intégrée située sur le côté gauche, idéale pour profiter pleinement de l’extérieur en toute convivialité.
À l’intérieur, vous découvrirez un séjour très lumineux, aménagé avec une table et des chaises, parfait pour partager des moments de détente ou des repas en famille.
La cuisine, fonctionnelle et bien équipée, comprend 4 feux gaz ainsi qu’un grand réfrigérateur avec congélateur, offrant tout l’espace nécessaire pour cuisiner comme à la maison.
L’espace nuit se compose de 2 chambres, tandis que la partie sanitaire propose une salle de bain avec douche et lavabo, accompagnée de WC séparés pour plus de confort.
Intéressé ?










